Mogliano Veneto (TV), nella zona ovest, siamo a proporre una nuova costruzione con una particolare architettura dalla linea moderna e pulita dove le unità immobiliari saranno realizzate con un’attenzione particolare alla qualità dei materiali, alla funzionalità degli spazi nell’ ottica del risparmio energetico, dell’abbattimento dell’ inquinamento acustico e termico per costruire immobili in classe energetica A4+.
DA CAPITOLATO:pannelli fotovoltaici con 2 KW per unità, impianto di riscaldamento radiante a pavimento con termoregolazione per le 2 zone (notte e giorno), pompa di calore per raffrescamento estivo, impianto autonomo con bollitore di ultima generazione per il riscaldamento dell’acqua calda, videocitofono, impianto antifurto e servizio di sorveglianza con Rangers Battistolli che sarà gratuito per i primi 2 mesi dalla data di attivazione post rogito.
I rivestimenti interni saranno in gres porcellanato per la zona giorno ed i bagni, in listoni di legno prefinito (rovere) per le camere; nei bagni sanitari e piatto doccia con rubinetteria Gessi, maniglie Olivari per le porte interne.
PREDISPOSIZIONE:impianto di ventilazione meccanica forzata puntuale (VMC) e di aria condizionata, prese per ricarica auto elettriche, eventuale installazione di batterie di accumulo per l’impianto fotovoltaico, motorizzazione dei basculanti dei box auto.
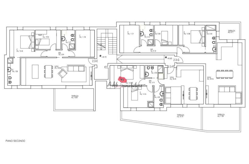
L’unità F dell’edificio 2.3, posta al piano secondo ha ingresso su zona giorno di 30 mq con accesso da grande vetrata scorrevole alla terrazza da sfruttare come zona pranzo e salotto esterna fin dalle prime giornate di primavera, disimpegno per la zona notte dove troviamo 1 camera matrimoniale, 1 camera singola spaziosa, 2 bagni finestrati con doccia.
Garage al piano terra e e posto auto di proprietà.
VENDITA DIRETTA Inizio costruzione marzo 2026 – fine lavori ottobre 2027
Prezzo € 270.000,00 Rif. ME862_18
L’indirizzo dell’immobile è meramente indicativo. Le immagini sono protette da copyright. Potete chiamarci direttamente Elena 3248380276 Agnese 3911168202; potete scrivere al nostro indirizzo mail: info@adeleimmobiliare.it; inviare un messaggio utilizzando il nostro sito internet: www.adeleimmobiliare.it o uno dei nostri profili social : Facebook e Instagram






















